12.06.06 Corrección #07 <vuelta al índice
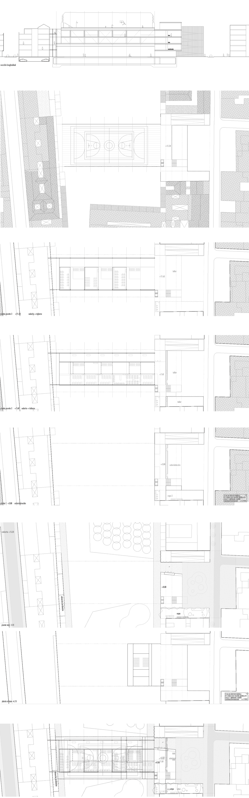
El proyecto sigue avanzando con buen pie, si es eso lo que querías saber. He saltado por primera vez a escalas útiles y reales de 1/200 a raíz de la pasada corrección ¬01 de construcción.

La manzana
El edificio de la biblioteca (edificio B) no se ha trabajado esta vez. Debe ser un volumen más bajo que el dibujado. Salva más o menos la misma luz que el otro pero es de una sola planta. Con 4,5m de canto bastará. Irá situado más bajo delimitando una zona especial de entrada oeste a la plaza. Su zona de entrada está por estudiar teniendo como posibilidades hacer el hall en la crujía de terraza estructural (que puede variar eventualmente su grosor) o bien necesita expandirse hacia la plaza o meterse en la parcela norte con la que limita.
En planta baja se buscan programas de los que sea deficitario el barrio. Eventualmente los programas se pueden desarrollar en plantas superiores así como la crujía continua, de 3m, puede variar de tamaño según la necesidad. Por el momento hay puestos de libreros vinculados a Bravo Murillo junto con un kiosko, locales de asociaciones de barrio, almacén jardineros y aseos públicos.
El espacio libre tendrá bajo los puentes plazas duras y otras zonas serán verdes de hoja caduca situados en lugares de máximo soleamiento. En mente la plaza de la Remonta.


Edificio A
El edificio de las aulas forma una plaza al norte. El enchufe en planta está formado por la rampa a un lado y el bloque con salas de exposición y talleres al otro.
Las plantas baja y 1 asumen el programa de administración, hall, secretaría y exposición ligada a la calle.
Las plantas 2 y 3 (puente en toda su longitud) son las aulas y talleres.
La planta de cubierta es la zona abierta y de juego. En la zona de la cabeza (la zona del edificio que delimita la plaza norte) hay una zona cubierta y de uso por definir.
La rampa funciona de un modo independiente al edificio, no dependiendo de él para funcionar. Es espacio público y con ella se accede a la cubierta.
A continuación las plantas desde la de cubiertas hasta el sótano. Muchas sólo brevemente esbozadas, pero ya se adivinan intentos de modulación y estructura. En este orden: sección longitudinal, planta cubiertas, planta 3, planta 2, planta 1, planta baja, sótano y superposición.

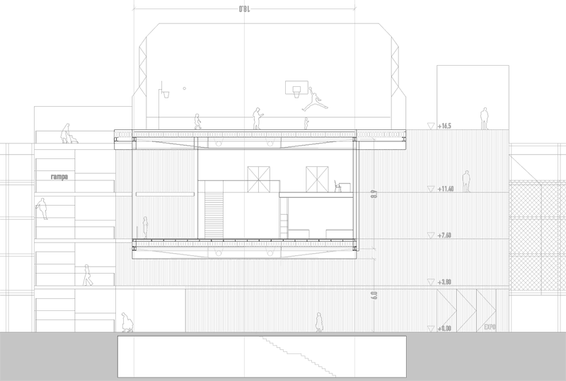
El puente
Primera aproximación a la estructura del puente. Una caja estructural (una cercha a cada lado) y dentro las aulas. Su programa son las aulas y espacio de encuentro de los alumnos. La terraza es de libre acceso desde la rampa. La luz del puente son unos 56 metros que se salvan con una cerca de unos 9 metros de canto. La estructura secundaria, la que conecta las cerchas grandes aún no está definida, pero probablemente sean cerchas de 1 metro de canto para salvar los 18m. Entre estas cerchas de segundo orden se colocan alveoplacas
(aidepla, sociedad defensora de la alveoplaca con manuales de uso) de 45cm de canto y 8 x 1,2m en planta.
Los pequeños voladizos, a izquierda y derecha de esta sección, añadidos en el último momento para dar a la cubierta un ancho de 24m que permitiera tener la pista de fútbol sala reglamentaria con un mínimo margen, probablemente no sigan adelante y se mantenga la rotundidad, con hendiduras y trabajando la piel, del puente. Se estudiará la posibilidad de tener pista de fútbol sala o dejar sólo baloncesto y otros deportes de campo más pequeño.

futbol sala
Campo reglamentario 40x20m
con + - 2m
[máximo 42x22m,
mínimo 38x18m]