25.09.06 Corrección #10 <vuelta al índice
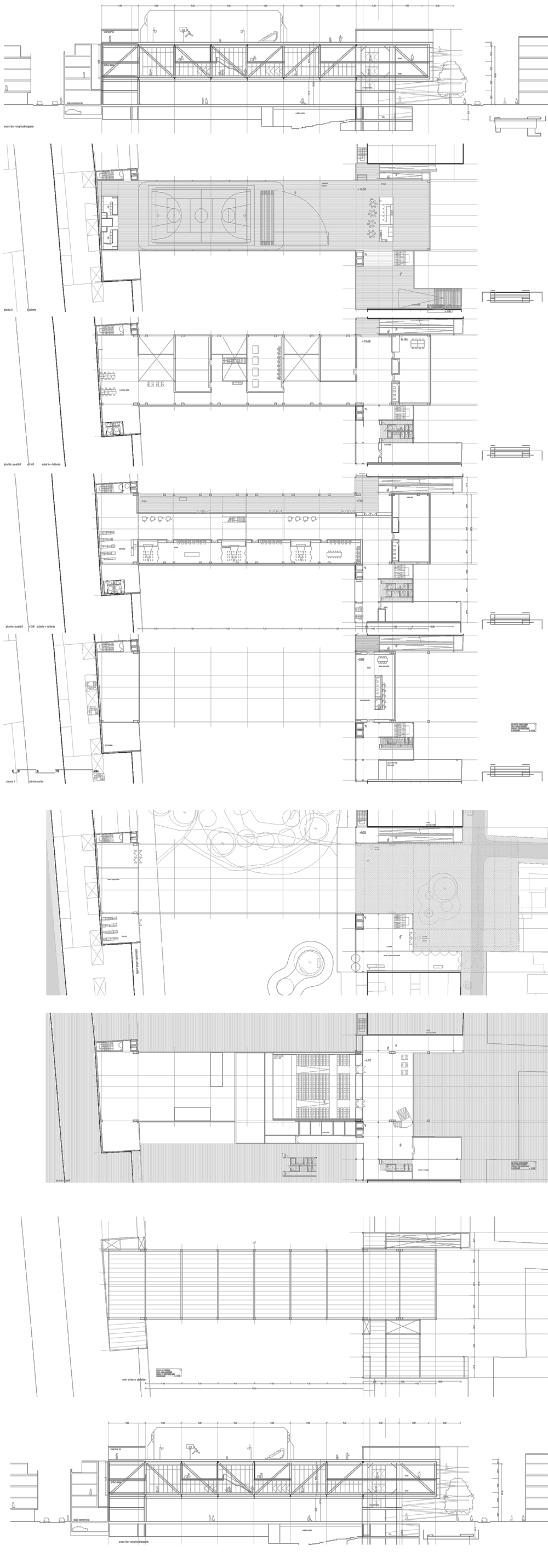
La estuctura predominante (la cercha) no debe ser el generador de todo el orden del proyecto. Si existen estas grandes estructuras es para permitir que arriba y debajo se pueda actuar libremente. Esto es, que sobre la cercha y en el sótano se proyecte sin la ortoestricticidad de la cercha: formas libres, elementos en la terraza dispersos, auditorio regido con otra forma... hacer patente la disociación de las diferentes estructuras.
Entrada a la plaza: ¿por debajo de la pieza adjunta y no por el puente? Estudiarlo. Mantener el tratamiento de medianeras, el acceso a la rampa...
Dimensión de la terraza-pasillo-clases de la segunda planta (P+2). Diferenciar.
Construcción: sustituir placa alveolar por chapa colaborante. Más acorde con la estrucutra metálica, imagen más liviana.
Futuro
Manzana
Mantener el tema de la estructura adosada a toda la manzana?
El otro edifico biblioteca?
Definir paseo perimetral y parque-plaza interior.
Un plano a1 para la siguiente con toda la manzana.
Materiales
Aspecto exterior, piel, materiales de interior, imágenes de referencia, cubierta...
Referencias
Lista clara de las referencias del género de este tipo de edificios puente: Lina Bobardi, Mendes da Rocha, EMT (Cano Lasso), Ayuntamiento de Benidorm (AMP), Zaha Hadid
Plantas todas y sección (de la terraza al sótano)





