L08.01.07 corrección #14 <vuelta al índice

L1. Está vacío actualmente. Dar información sobre el barrio e Bellas Vistas cobre el propio plano: densidad. Mejor que llenar de planos pequeños. Es un boceto, hay que trabajarlo.
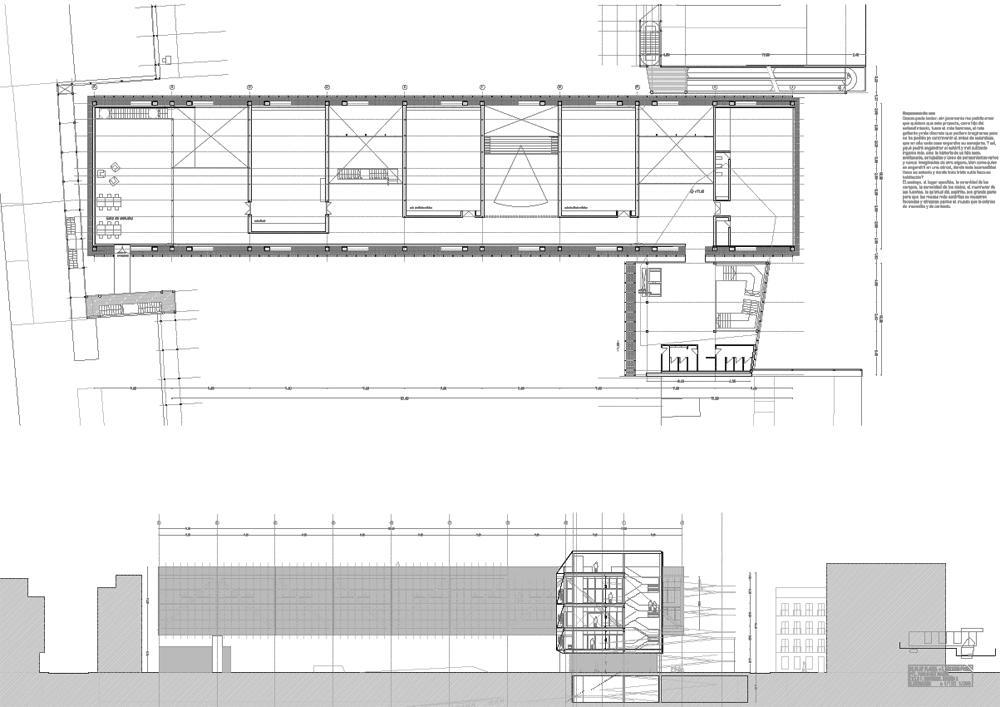
L2. La manzana. Un intento de introducir un resumen del edificio en la lámina 2. Pero: el edificio siempre debe mostrarse en su contexto: trabado con su entorno. Se llenará ese espacio con estudio de la manzana y fotomontajes. Se ve esbozo de 3 minutos del sótano (idea de no estar sujeto a lo que pasa en la cercha)... seguir avanzando. Quizá el sótano no ocupa toda la planta baja.
Es la única lámina donde sale parque dibujado.
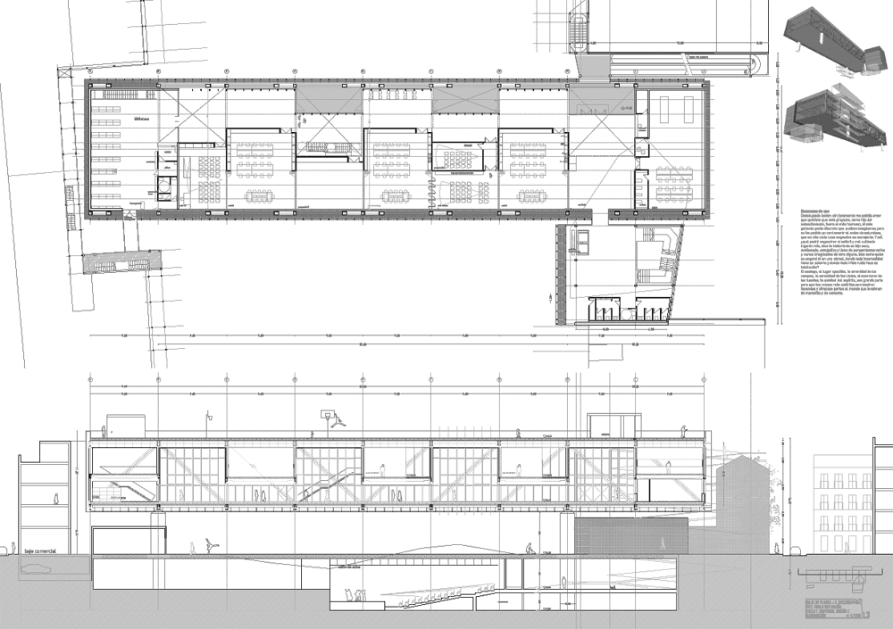
L3 o L7. Estudio de los pisos beneficiados por la reforma. un plano analítico que gusta...uffffff que cosas se dicen.
La viga cajón está trabada-bien encajada por el norte, pero no tanto por el sur. Mirárselo.
L3 Edificio. Planta principal y sección. Estudiar por donde se da la sección longitudinal. Trabajar acceso a biblioteca.

"Nadie dirá que una sección falta pero sí pondrá el dedo sobre los fallos. El PFC es un ejercicio de discriminación, si algo no está bien, debes saber que no debes mostrarlo. " A. C.
Es el caso de esta sección.

Sección por doble altura. los forjados superior e inferior deberían acoger todas las instalaciones, dejando el del medio más fino, con otro carácter... esto ya lo hemos oído y escrito antes.

¿Partir el aula con dos alturas diferentes? Sólo si el programa así lo pide.
La piel envolvente: la estructura de las barandillas ¿no es demasiado aparatosa?¿misma entidad-grosor que la principal no es excesivo?
En la sección transversal con gradas (aún no dibujada): las gradas pueden ser un mueble más.
Referencias: buscar López Cotelo en Zaragoza y Alcalá de Henares y Navarro Baldeweg en Murcia (espacio para coferencias).